Porta Romana -- Loft di Prestigio
EUR 749.000MILANO | V Giornate, XXII Marzo, Porta Romana
4 locali | 94 mq | 3 bagni | Classe A1





MILANO | C.so Lodi, 31
EUR 250.000
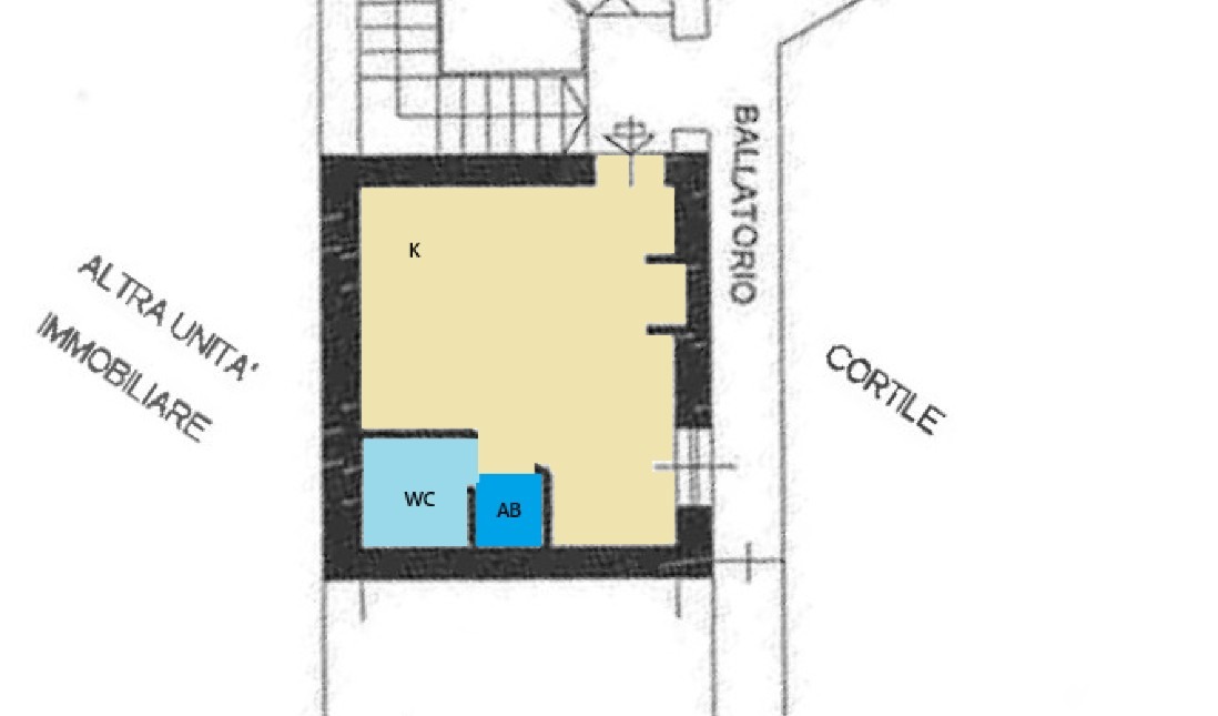
Monolocale con ampio solaio in vendita a Milano, Corso Lodi – Ottima opportunità a due passi dalla metropolitana A soli 250 metri dalla fermata della metropolitana, nel tratto più servito e vitale di Corso Lodi, proponiamo in vendita monolocale di 28 mq, situato all’ultimo piano di un tipico stabile “Vecchia Milano”, silenzioso e ben abitato. L’appartamento, posto al terzo piano senza ascensore, si presenta in buone condizioni interne, pronto per essere abitato o messo a reddito. Un ingresso introduce direttamente nella luminosa zona giorno con angolo cottura a vista e area notte ben organizzata. Il bagno è è completo di ogni comfort. L’immobile è dotato di aria condizionata, ideale per garantire benessere in ogni stagione. Peculiarità rara e di grande valore aggiunto è la soffitta di proprietà, sovrastante e delle stesse dimensioni dell’appartamento, inclusa nel prezzo. Una soluzione che apre a interessanti prospettive di sviluppo: grazie alle altezze e alla posizione, è possibile – previo ottenimento delle necessarie autorizzazioni – valutare la creazione di un secondo livello abitativo o di una stanza aggiuntiva, aumentando il potenziale dell’immobile. La posizione è strategica: la vicinanza alle fermate della linea M3, al Passante Ferroviario, e a numerosi mezzi di superficie rende ogni spostamento comodo e veloce. Il quartiere è in forte crescita, ricco di negozi, supermercati, servizi di prossimità, e particolarmente apprezzato da studenti e giovani professionisti. Le principali università milanesi, tra cui Bocconi, IED, NABA, Marangoni e Statale, sono tutte facilmente raggiungibili. Ideale come prima casa, pied-à-terre o investimento a reddito, questa proposta unisce posizione, funzionalità e potenzialità futura. Contattaci per maggiori informazioni o per fissare una visita.
Piano: 3 di 3
Locali: 1
Superficie: 28 mq
Classe Energetica: E
Spese Condominiali: 1200€/anno
AGENZIA
Milano Porta Romana
Corso di Porta Romana, 124 - 20122 Milano
TELEFONO
+39 02 39308715
MILANO | V Giornate, XXII Marzo, Porta Romana
4 locali | 94 mq | 3 bagni | Classe A1
MILANO | V Giornate, XXII Marzo, Porta Romana
1 locali | 36 mq | 1 bagni | Classe D
MILANO | Bocconi, C.so Italia, Ticinese
5 locali | 133 mq | 1 bagni | Classe G
Siamo qui per aiutarti a trovare la casa perfetta per te.